Особенности:
- Фланцы-адаптеры предназначены для соединения одного типа фланцев с другими типами. Они производятся для большинства типов соединений, таких как CF (ConFlat), KF, ISO и ANSI. Все адаптеры выполнены из нержавеющей стали, если другой материал не указан.
- Большинство систем фланцев адаптированы к фланцам ANSI. Данный каталог показывает только самые популярные варианты, но компания НТС может выполнить практически любые модификации, чтобы удовлетворить индивидуальные потребности.
Применение:
- Замена типа соединения.
- Вариации размеров труб и их модификации под индивидуальный заказ.
- KF трубные адаптеры типа «мама» используются для того, чтобы установить PT (NPT) манометр с резьбой или вентиль в форвакуумную линию. Зачастую KF тройник устанавливается в соединение форвакуумной линии и третий порт закрывается адаптером.
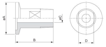
- KF трубные адаптеры «папа» представляют собой концевики с фланцами, которые заканчиваются резьбой размерами от 1/8 дюйма до 1 дюйма. Для создания вакуумного уплотнения на стыках с резьбой используйте тефлоновую ленту.
- KF адаптеры для шлангов выполнены из нержавеющей стали с фланцем на одном конце и адаптером под шланг с другой. Эти адаптеры совместимы со стандартными размерами шлангов.
- KF быстросъемный адаптер позволяет соединение фланца KF и любой трубы с гладкой поверхностью через уплотняющее кольцо. Чаще всего они применяются для присоединения ионных или термопарных вакуумных датчиков к системе.
- SwagelokR фитинги обеспечивают вакуумное уплотнение без затяжки с определенным моментом любых соединений труб, и позволяют избежать утечки в линиях от измерительных устройств или процессов.
- VCRR адаптеры используются для соединения компонентов VCR к существующей фланцевой системе. Вакуумное уплотнение VCR создается сжатием уплотнения (обычно медного) между двумя высоко отшлифованными бортиками на поверхности соединений VCR.
| Параметр | Значение |
| Материал | Нержавеющая сталь 304 |
| А | 40 |
| В | 40 |
| С | 11.9 |
| D | 22 |
| Резьба | 1/2″PT |
Все покупки на сайте осуществляются с помощью безналичной оплаты.
Все платежи для физических лиц осуществляются через сервис Paykeeper.
Также возможно оформление счета для оплаты от юридического лица (мы работаем с НДС).
Подробная информация на странице «Условия оплаты».

Мы доставляем грузы несколькими транспортными компаниями, подробнее узнать о которых вы можете в разделе «доставка».
Выбрать вариант доставки вы можете при оформлении заказа на сайте, либо связавшись с менеджером
Срок поставки менеджер уточнит после оформления заявки.