Соединительные скобы 1С представляют собой быстрый и надежный способ соединения оптических столов. Соединяемые столы обычно имеют отверстия М6 на верхней поверхности. Те же отверстия используются для соединительных скоб. При минимальном изгибе жесткость соединения составляет не более чем 15 мкм/м при нагрузке 100 кг. Универсальные соединительные скобы изготовлены из химически пассивированных стальных плит, декорированных кожзаменителем.
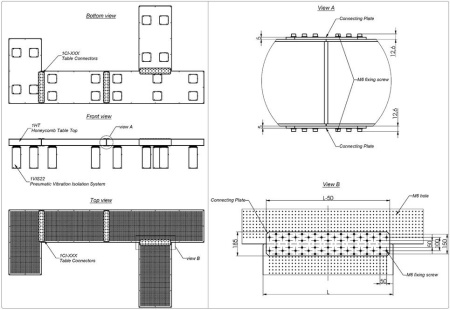
Для соединения нескольких оптически плит, установленных на пневматических системах виброизоляции необходимо использовать более жесткие стальные накладки 1CI-XXX, которые обеспечивают наиболее жесткое соединение двух и более оптических плит без потери жесткости и виброизолирующих параметров всей системы. Стыковка возможна в I, T, L и других конфигурациях, с любым количеством оптических плит.
Места стыка плит специально подготавливаются при производстве, а стальные накладки изготавливаются по месту специально для соединения двух конкретных плит. Обязательно производится контрольная сборка каждой системы при производстве.
Для стыковки используются стальные листы толщиной 5 мм, которые крепятся к верхней и нижней части оптической плиты в месте стыка. Такой вариант крепления распределят силы равномерно по всей площади стыка. Соединенная таким образом система столов обеспечивает параметры близкие к единому монолитному столу.
Модель 1CT-120:
- T-конфигурация плит
- Толщина плиты 120 мм
Все покупки на сайте осуществляются с помощью безналичной оплаты.
Все платежи для физических лиц осуществляются через сервис Paykeeper.
Также возможно оформление счета для оплаты от юридического лица (мы работаем с НДС).
Подробная информация на странице «Условия оплаты».

Мы доставляем грузы несколькими транспортными компаниями, подробнее узнать о которых вы можете в разделе «доставка».
Выбрать вариант доставки вы можете при оформлении заказа на сайте, либо связавшись с менеджером
Срок поставки менеджер уточнит после оформления заявки.